
7 foto's




+2
HuurOnder optieEnergielabel B
Burchtplein 34
Vleuten
Woonoppervlakte
99 m²
Kamers
0
Type
Appartement
Beschikbaar
Per direct
Omschrijving
Per 01 maart beschikbaar! Een modern 3-kamer appartement, gelegen boven het bruisende winkelcentrum van Vleuterweide.
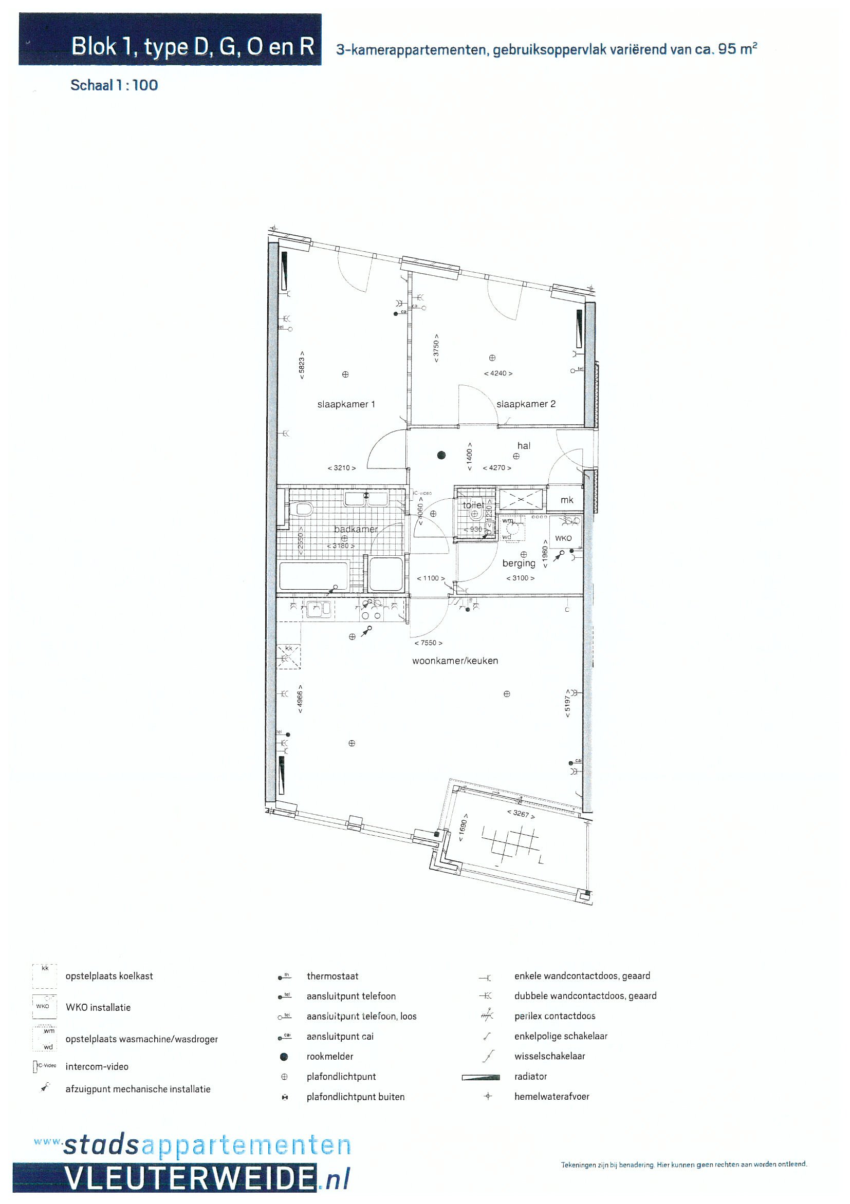
Plattegrond

Over de buurt
Vleuten is een levendige buurt met een goede mix van winkels, restaurants en groenvoorzieningen. De wijk staat bekend om zijn centrale ligging en goede bereikbaarheid. Ideaal voor zowel starters als gezinnen die willen genieten van stedelijk woongemak met alle voorzieningen binnen handbereik.
Bereikbaarheid
Trein
Station Vleuten
10 min lopen
Bus
Bushalte om de hoek
2 min lopen
Auto
Snelweg A10
5 min rijden
Voorzieningen in de buurt
Supermarkten
Albert Heijn, Jumbo (5 min lopen)
Scholen
Basisscholen in de wijk
Sport & Recreatie
Sportschool en park nabij
Medisch
Huisarts in de buurt
Kenmerken overzicht
| Adres | Burchtplein 34, Vleuten |
| Type woning | Appartement |
| Woonoppervlakte | 99 m² |
| Aantal kamers | 0 |
| Status | Gereserveerd |
| Energielabel | B |
| Buurt | Vleuten |
Locatie
Burchtplein 34
Vleuten
